Trilocale in vendita

Milano, Via Cascina Barocco - Forze Armate Bisceglie
€ 265.000
3 locali 3 locali
69 Mq 69 Mq
1 bagno 1 bagno

Trilocale in vendita

Milano, Via Cascina Barocco - Forze Armate Bisceglie

Descrizione annuncio

Via Cascina Barocco:

Adiacente a Via delle forze armate, quindi a 10 minuti a piedi dalla M1 BISCEGLIE, oltre che a pochi metri dalle fermate dei vari mezzi di superficie (Bus 63/433/67/49/78/NM1) che in meno di 15 minuti collegano al centro della città, proponiamo un TRILOCALE completamente ristrutturato, posto al primo piano, in stabile dotato di ascensore e di recente ultimato bonus 110%.

La zona risulta tranquilla e ben servita, fornita di tutti i servizi di prima necessità come supermercati, farmacie, scuole, poste, bar, ristoranti.

Inoltre, posizione strategica per l'accesso a tutte le arterie tangenziali/autostradali. Inoltre, si tratta di un quartiere tranquillo, circondato da parchi e zone verdi, ma allo stesso tempo ben collegato con il centro città, grazie ai mezzi di trasporto pubblico.

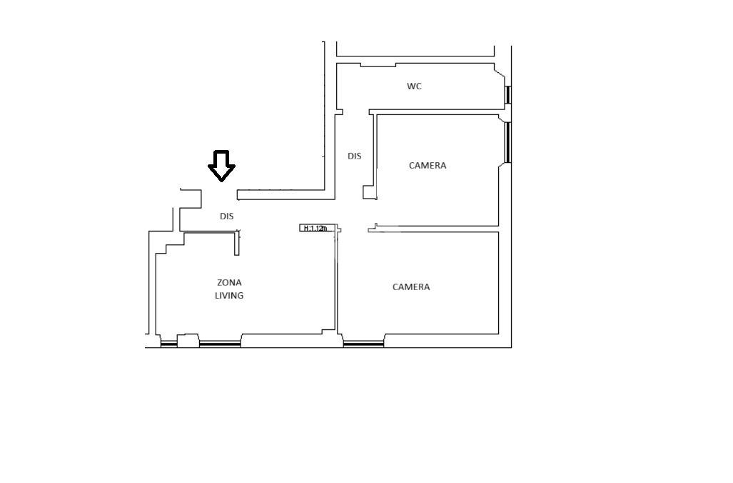
L'appartamento risulta essere così composto:

Entrata in zona living con cucina a vista, ambiente che gode di estrema luminosità grazie al doppio punto luce con affaccio esterno.

Divide la zona giorno dalla zona notte disimpegno dove si accede a entrambe le camere matrimoniali con doppia finestra e bagno finestrato con box vasca.

Completa la proprietà cantina di pertinenza e doppio posto auto nel cortile condominiale con la possibilità di renderlo coperto.

L’appartamento è stato completamente ristrutturato nel 2016, pavimentazione in gres porcellanato chiaro, infissi in alluminio doppio vetro, porta blindata e video citofono.

Ottima soluzione per giovani famiglie, da non sottovalutare la classe energetica B, che permette di accedere a mutuo green con agevolazioni sul tasso di interesse.

Le immagini sono state ritoccate a scopo illustrativo e non costituiscono un elemento contrattuale.

Riscaldamento centralizzato.

Basse spese condominiali

VALUTAZIONI GRATUITE.

CONSULENZE MUTUO GRATUITE.

Ogni agenzia ha un proprio titolare ed è autonoma.

Le informazioni non costituiscono elementi contrattuali.

Mostra tutto

Nelle vicinanze

Trasporto pubblico Trasporto pubblico
Bisceglie
Bisceglie
810 m
Inganni
Inganni
1,2 Km
Milano San Cristoforo
Milano San Cristoforo
2,8 Km
Piazza Axum (Stadio Meazza)
Piazza Axum (Stadio Meazza)
2,0 Km
San Siro Ippodromo M5
San Siro Ippodromo M5
2,3 Km
Ricariche auto elettriche Ricariche auto elettriche
LIDL Milano Forze Armate
640 m
A2A Isola Digitale Bisceglie
770 m
Centro Commerciale La Torre - distributore IP
1,6 Km
Lidl Milano Lorenteggio
2,2 Km
Scuole Scuole
Scuola Primaria di Via Valdagno
330 m
Scuola Secondaria di Primo Grado Iqbal Masih
410 m
Scuola Primaria Ercole Ferrario
500 m
Istituto di Istruzione Superiore Marie Curie e Piero Sraffa
670 m
Scuole
780 m
Farmacia Farmacia
Farmacia
320 m
Farmacia comunale
390 m
Farmacia Nuova Inganni
1,4 Km
Farmacia Comunale
1,5 Km
Lloyds Farmacia n.73
1,8 Km
Ospedali Ospedali
Ospedale San Carlo Borromeo
850 m
Ospedali
1,4 Km
Casa di Cura Ambrosiana
1,9 Km
Casa di Cura San Giovanni
2,1 Km
Supermercati Supermercati
Esselunga
260 m
Carrefour Market
570 m
Lidl
610 m
Coop di Via Fratelli Zoia
970 m
Eurospin
1,0 Km
Negozi Negozi
Negozi
180 m
La Bontà del Forno
500 m
Ina Market
1,1 Km
Amata
1,5 Km
Gespan
2,0 Km
Bar Bar
Cake l’HUB
950 m
Bar
1,2 Km
Cascina Torrette di Trenno
1,4 Km
Los Locos
1,7 Km
King Toast Cafè
2,1 Km
Ristoranti Ristoranti
Ristoranti
760 m
Red and white bar Snc
1,1 Km
Bar Trattoria 395
1,3 Km
Totó
1,4 Km
Alla Grande, osteria tradizionale
1,4 Km
Mostra tutto

Caratteristiche

Rif.:
61143448
Piano:
1 di 4 con ascensore (Piano basso)
Posti auto:
2
Camere da letto:
2
Arredamento:
Assente
Condizionamento:
Assente
Mostra tutto
Prezzo Prezzo
€ 265.000
Rata mutuo Rata mutuo
€ 1.235 / mese
Spese annue Spese annue
€ 1.600
Proponi il tuo prezzoProponi il tuo prezzo

Classe Energetica

B
B
B
B
B
B
B
B
B
EP globale non rinnovabile:
67.54 kW h/m² anno
EP globale rinnovabile:
1.00 kW h/m² anno
EP invernale del fabbricato:
EP estiva del fabbricato:
Anno di costruzione:
1960
Riscaldamento:
Centralizzato
Tipo impianto:
A radiatori
Tipo alimentazione:
Metano

Ti interessa visionare l'immobile?

Fissa un appuntamento  Fissa un appuntamento

Richiedi informazioni

* Questi campi sono obbligatori

Calcola il tuo mutuo

Semplice e senza impegno
Anticipo

( % )
Mutuo

( % )

pochi semplici passi

inserisci i tuoi dati
Questionario completato
Grazie per aver richiesto un appuntamento senza impegno con un nostro Consulente del Credito e Assicurativo.

Hai inserito correttamente tutti i dati necessari e a breve riceverai una e-mail con un link da convalidare per inviare i tuoi dati.
Affiliato
Adr Case Srl
Via Fratelli Zoia, 86 20138 Milano (MI)

Il nostro staff


  • Emmanuel Kweku Ankah
    Collaboratore

  • Gianmario Apone
    Responsabile

  • Gabriele Tassone
    Collaboratore
Via Fratelli Zoia, 86 20138 Milano (MI)
Zona: Quarto Cagnino-Forze Armate-Bisceglie
Mostra su mappa
Orari: Lunedì-Venerdì h 09.00-20.00 /Sabato 09.00-18.00
Affiliato
Adr Case Srl
Via Fratelli Zoia, 86 20138 Milano (MI)

2025 Tecnocasa Franchising S.p.A. - P. IVA 08365160152 - Via Monte Bianco 60/A 20089 Rozzano (MI). Ogni agenzia ha un proprio titolare ed è autonoma. Privacy policy | Policy utilizzo | Cookie policy